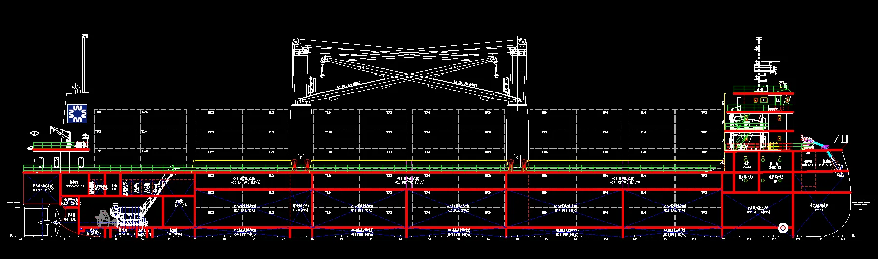
5月23日,由台州理工船舶工程设计有限公司为印度尼西亚某航运公司设计的四艘396TEU敞口集装箱的第三艘船“博大73”顺利下水。前2艘为“博大71”“博大72”。该系列船由宁波博大船业有限公司建造,CCS审图检验。

该船总长109.8m,垂线长107.2m,型宽18.5m,型深8.6m,设计吃水4.95m,载重量5900吨,装箱量396TEU,设计航速(85%MCR)12.3节;首驾驶设2台40吨克令吊,适装各类危险品箱;单机单桨推进,推进系统由大发6DKM-28e (1840KW*750rpm)和重齿GWC49.57及FPP螺旋桨组成;船舶首部设变频侧向推进器。



该船拟取得如下入级符号:
- CSA Open-Top Container Ship, R1, Loading Computer (S、 I),In-Water Survey
- CSM BRC

